【租金】(面议)
室内一层:210元/平方米
室内二层:168元/平方米
室内三层:168元/平方米
户外:42元/平方米
【管理费】
室内:35元/平方米; 户外:25元/平方米
【面积】
室内一层:397.88平米
室内二层:228平米
室内三层:200平米
户外:426.02平米
【递增】租金从第二年起,递增8%
【押金】三押一付
【合同】3-5年
【业态】餐饮/酒吧
▲整体外立面
▲室内
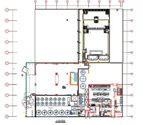
▲一层平面图
▲二层平面图
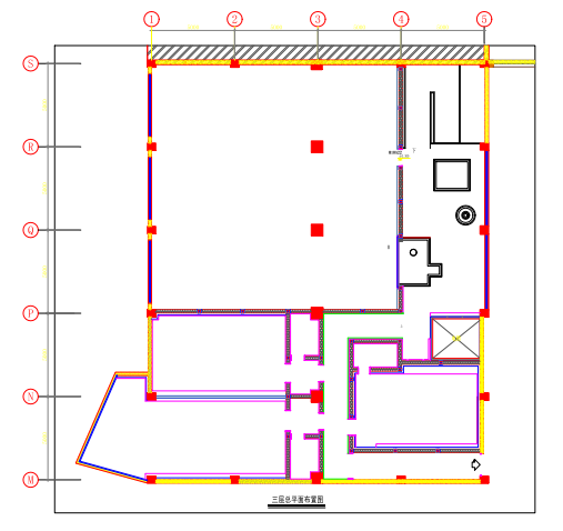
▲三层平面图
【项目公众号】
【交通信息】
地铁:磨碟沙站(8号线及18号线)
电车:有轨电车琶醍站
公交:阅江西路西站(765、779、B7)
码头:琶洲港澳码头
【项目背景】
项目原为1985年建成投产的珠江啤酒厂,2016年响应“退二进三”政策要求,原址全面启
▲一层平面图
▲二层平面图
▲三层平面图
【项目公众号】
【交通信息】
地铁:磨碟沙站(8号线及18号线)
电车:有轨电车琶醍站
公交:阅江西路西站(765、779、B7)
码头:琶洲港澳码头
【项目背景】
项目原为1985年建成投产的珠江啤酒厂,2016年响应“退二进三”政策要求,原址全面启
动——
珠江啤酒旧厂改造项目,项目占地面积约6.9万㎡,总建筑面积约26万㎡。
项目以“输出啤酒文化”为核心,涵盖特色餐饮、酒店、商业、旅游、未来办公和商务配套
【周边区域】
项目坐落于珠江南岸的琶洲广州人工智能与数字经济试验区核心位置,与珠江新城、国际
项目以“输出啤酒文化”为核心,涵盖特色餐饮、酒店、商业、旅游、未来办公和商务配套
等多元业态,构建“工业遗产活化+文化消费”的独特模式,建设具有工业特色的城市文化
地标和啤酒文化创意街区。
【周边区域】
项目坐落于珠江南岸的琶洲广州人工智能与数字经济试验区核心位置,与珠江新城、国际
金融城隔江相望,与阿里、腾讯、唯品会等近40栋电商巨头总部为邻。
期待与您合作!





